Aula Gymnasium Soltau
Umbau und Sanierung Aula und Mittelbühne Gymnasium Soltau
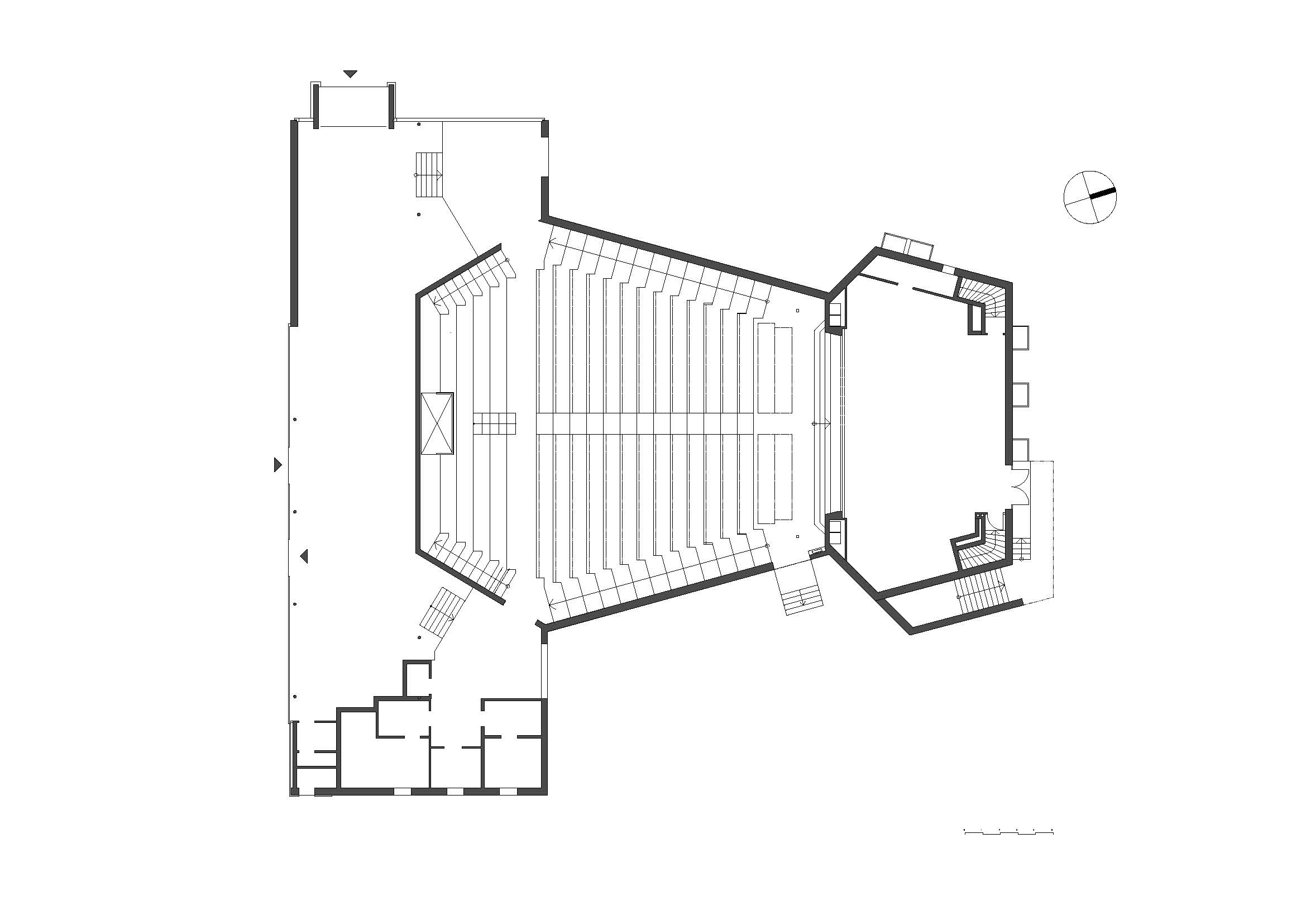
Die Aula des Gymnasiums Soltau wurde 1973 eingeweiht und diente von Anbeginn an auch als Theater der Stadt Soltau mit damals insgesamt 600 Sitzplätzen und einer Mittelbühne. Nach nunmehr über 40 Jahren stand eine grundlegende Neugestaltung und brandschutztechnische, sowie energetische Ertüchtigung an.
Das Haus besitzt in seiner Struktur, in seiner Architektur, in seinen gut durchdachten Funktionsabläufen eine Zeitlosigkeit. Das Theater ist dynamisch proportioniert und besitzt obendrein eine sehr gute Raumakustik.
Es war unser Ziel, die Modernisierung mit zeitgemäßen Materialien behutsam durchzuführen. Hierzu zählen LED-Beleuchtung, fugenlose Akustikdecken, Lichtbänder, farbige Plattengestaltung für den Möbelbau. Im Theatersaal wurde die LED-Beleuchtung eingesetzt, um der vorhandenen Raumstruktur eine neue Dynamik zu geben und verschiedene Lichtinszenierung und Raumstimmungen zu ermöglichen. So wurden die beidseitigen Wandkassetten hinterleuchtet, die Deckensegel erhielten eine indirekte Beleuchtung um den schwebenden Charakter nochmals zu unterstreichen. Der Saal bekam eine neue Bestuhlung mit einem heute erforderlichen Mittelgang. Die Anzahl der Sitzplätze beträgt nun 534.
Die energetische Ertüchtigung bezog sich auf die neuen Glasfassaden, sowie auf eine nachträgliche 25 cm starke Einblasdämmung im gesamten Dachbodenbereich.
Diese Aula, dieses Theater wurde jetzt für die nächsten Jahrzehnte erneut zukunftsfähig gemacht, ohne den eigentlichen Charakter des Hauses zu verfremden.










