Erlebnisgastronomie
Neubau Erlebnisgastronomie in Bergen-Hohne
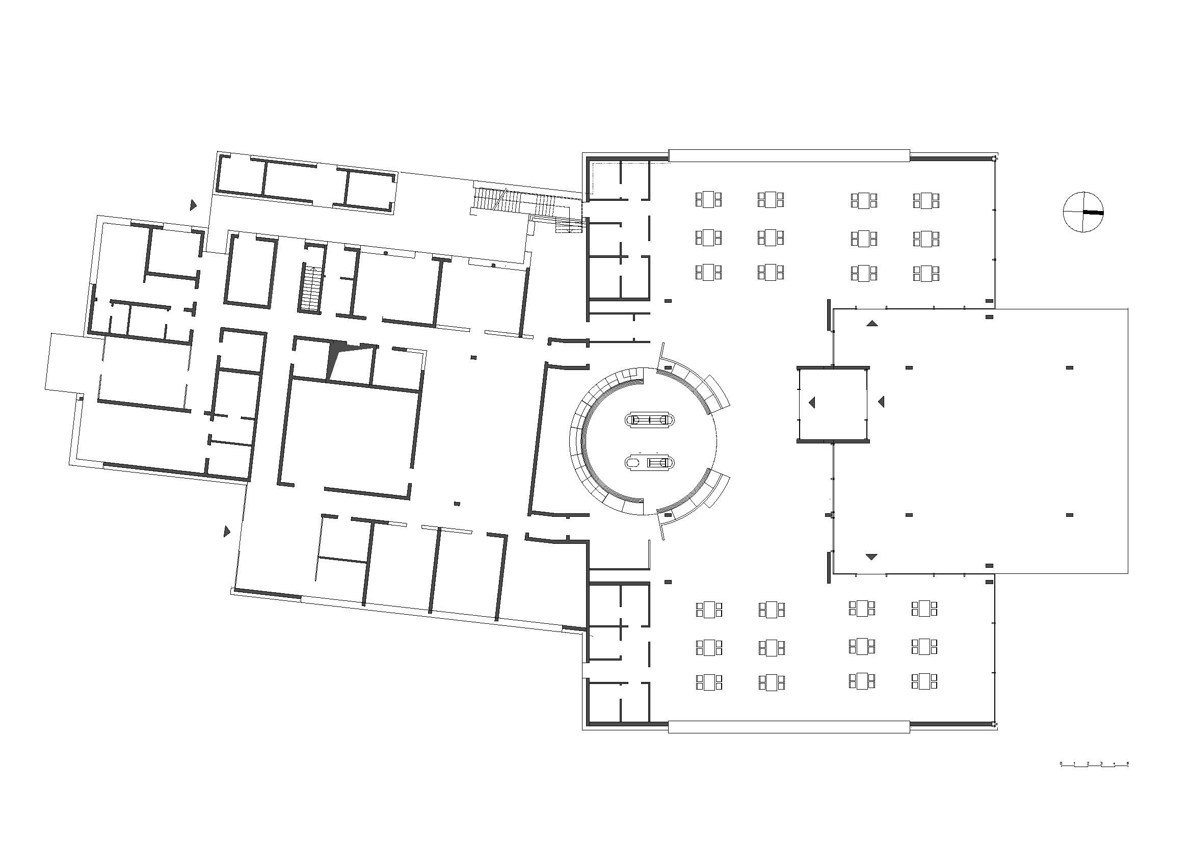
Die seit den 20-er Jahren bestehende Kaserne Bergen-Hohne wird seit der Nachkriegszeit von den Britischen Streitkräften genutzt. Die großräumigen historischen Offiziers- und Mannschaftsunterkunftsgebäude sind vollständig erhalten und werden bis heute genutzt. An markanter Stelle der Haupterschließungsachse ist der Neubau dieser Regimentskantine für ca. 680 Soldaten geplant. Die rechteckige Baufläche ist leicht gekrümmt und wird beidseitig durch die historischen Gebäude eingerahmt. Das Neubaukonzept nimmt städtebaulich diese Krümmung auf und nimmt hierdurch einen sehr starken Bezug zum Bestand.
Das Herzstück dieses Neubaus sind die großen Speisesäle mit dem Marktplatzbereich und einer vorgelagerten überdachten Freisitzfläche. Dieser Bereich ist der Haupterschließungsachse zugewandt.
Der Neubau ist auf Grundlage eines völlig neuen britischen Konzepts geplant. Es handelt sich bei dieser Planung nicht um die klassische Mannschaftsküche, sondern um eine „Erlebnisgastronomie".
Das Gebäude ist in die drei Bereiche Speisesaal, Küche mit Nebenräumen und Personal aufgeteilt.
Es wird über einen überdachten, lichtdurchfluteten Vorplatz „Piazza" durch einen zentral gelegenen Eingang erschlossen. In den Sommermonaten besteht auf der „Piazza" die Möglichkeit der Möblierung so dass das Angebot der Speisesäle in den Außenbereich erweitert werden kann. Der eigentliche Speisesaalbereich ist in zwei getrennte Speisesäle und einen zentralen „Marktplatz" - der Essenausgabe - gegliedert. An dieser Stelle wird das Konzept der „Erlebnisgastronomie" deutlich. Die Essenausgabe erfolgt an verschiedenen Tresen oder Ständen mit „Front-/ oder Theater- Cooking".












