Hans Brüggemann Schule
Umbau und Erweiterung Hans-Brüggemann-Schule, Walsrode
Dieses Projekt wurde von der Architektenkammer Niedersachsen für den Tag der Architektur 2003 ausgezeichnet.
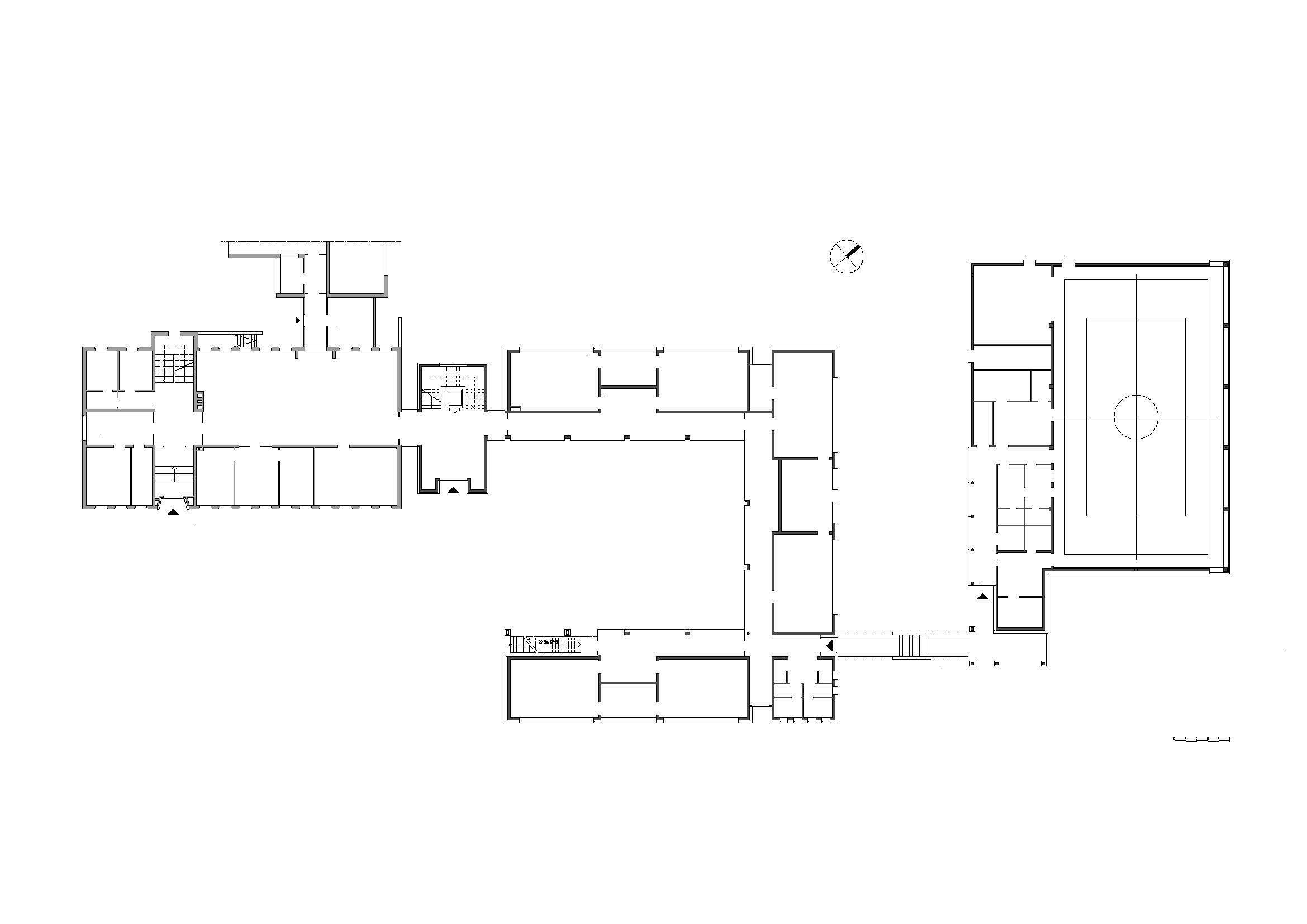
Die Hans-Brüggemann-Schule in Walsrode war der erste Schulneubau im Land Niedersachsen nach dem 2. Weltkrieg. Seit den 70-er Jahren wird sie als Sonderschule genutzt. Die stetig wachsenden Schülerzahlen hatten zur Folge, dass sich ein zusätzlicher Bedarf von 10 Allgemeinen Unterrichtsräumen, sowie dem Neubau einer Sporthalle ergaben.
Durch die u-förmige Erweiterung ergibt sich eine intime Pausenhofatmosphäre. Lediglich am Ostgiebel des Altbaus wird ein markantes Verbindungsbauwerk zwischen Alt und Neu plaziert.
Hier steht der neue Haupteingang mit Treppenhaus und Personenaufzug. Auf der Ostseite des Grundstücks entsteht die neue Sporthalle.
In Anlehnung an den Altbau wurde auch für die Erweiterungsbauten eine farblich abgestimmte Verblenderform gewählt. Die zinkgedeckten Pultdächer und die Gliederung der Fassaden setzen sich jedoch bewusst in einer zeitgemäßen Formensprache vom Altbau ab. Das hierdurch entstehende Spannungsfeld zwischen Alt und Neu, wird durch die Neugestaltung der Außenanlagen zusätzlich unterstützt. Das gesamte Projekt wurde im Frühjahr 2003 fertig gestellt und zum Tag der Architektur 2003 der Öffentlichkeit vorgestellt.












