Mensa Wilhelm-Busch-Schule
Neubau Mensa Wilhelm-Busch-Schule, Soltau
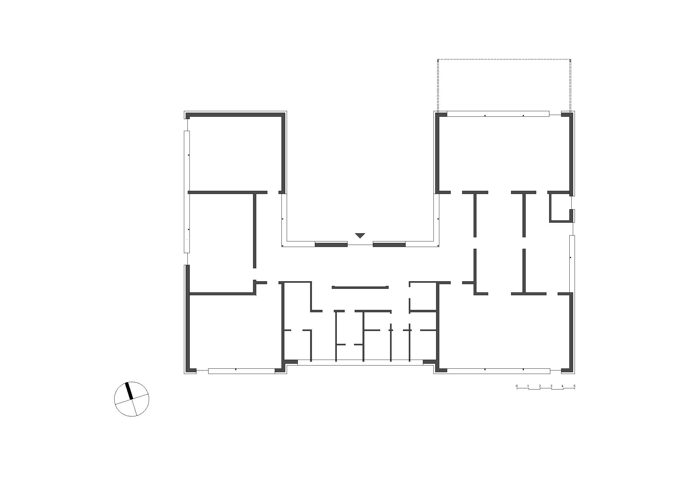
Für die Umwandlung der Wilhelm-Busch-Schule in eine Ganztagsschule war der Neubau einer Mensa erforderlich. Das Raumprogramm umfasste zwei Mensaräume, sowie eine zentrale Aufwärmküche. Weiterhin wurden drei Gruppenräume für je ca. 26 Kinder geschaffen. Die Gruppenräume können u. a. auch als Klassenräume genutzt werden. Vornehmlich findet dort jedoch Einzel- und Sonderbetreuungen in kleinen Gruppen statt. Die Mensa ist für 190 Essen ausgelegt und ist an 5 Tagen in der Woche in Betrieb. Eine überdachte Terrasse für den Mensaraum 1 schafft die Möglichkeit für die Kinder den Außenbereich regengeschützt zu nutzen. In die Dachfläche wurde eine Photovoltaikanlage integriert. Die gesamte Nutzfläche umfasst ca. 580 m². Der Neubau wurde im Herbst 2014 eingeweiht.















