Neubau Produktionshalle
Neubau Produktionshalle in Soltau
Dieses Projekt wurde von der Architektenkammer Niedersachsen für den Tag der Architektur 2006 ausgezeichnet.
Dieses Projekt wurde 2006 mit dem Stadtbildpreis der Stadt Soltau ausgezeichnet.
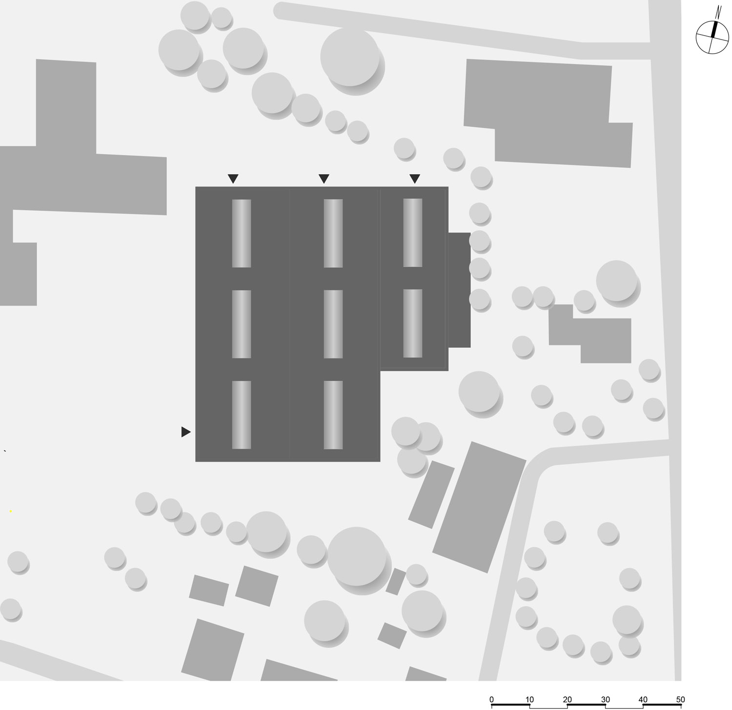
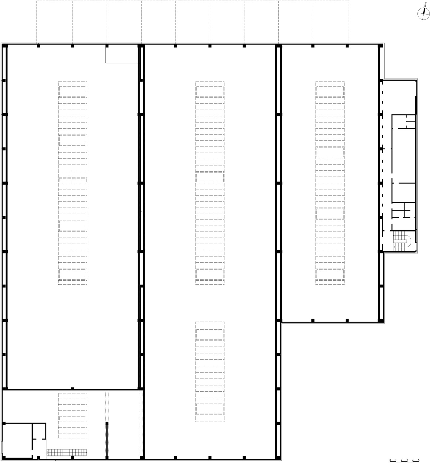
Seit ca. 150 Jahren ist die Gebr. Röders AG in ihren historischen Fabrikanlagen im Stadtgebiet Soltaus tätig. Zu ihren Aufgaben zählt die Herstellung und Produktion von Natur- und Synthesefilzen für die unterschiedlichsten Einsatzgebiete in der Textil-, Filter- sowie Umwelttechnik. Seit einigen Jahren hat sich die Herstellung von Sanierungsschläuchen zu einem wichtigen Standbein des Unternehmens entwickelt. Zur Optimierung der Produktionsabläufe ist der Einsatz von leistungsfähigeren Maschinen zwingend erforderlich. Aufgrund der Maschinenabmessungen lassen sich diese in den historischen Fabrikgebäuden nicht integrieren. Daher war der Neubau einer Produktionshalle erforderlich. In diesem Zusammenhang waren unterschiedlichste städtebauliche Planungsleistungen wie z. B. Biotopausgleich, F-Planänderung, sowie Aufstellung eines Bebauungsplanes erforderlich. Diese gesamten städtebaulichen Planungsleistungen haben wir im Rahmen unserer Gesamtplanung begleitet. Neben den besonderen städtebaulichen und gestalterischen Belangen waren die Berücksichtigungen von schalltechnischen Auflagen für die Planung der Produktionshalle von besonderer Bedeutung. Als Gesamtplaner sind wir verantwortlich für die Realisierung dieses Bauwerks mit einem Gesamtvolumen von 50.000 m³ umbautem Raum. Die Produktionshalle wurde im Sommer 2003 fertiggestellt.












