Neubau Kardiologie HKK Soltau
Neubau Kardiologie - Heidkreisklinikum Soltau
Dieses Projekt wurde von der Architektenkammer Niedersachsen für den Tag der Architektur 2013 ausgezeichnet.
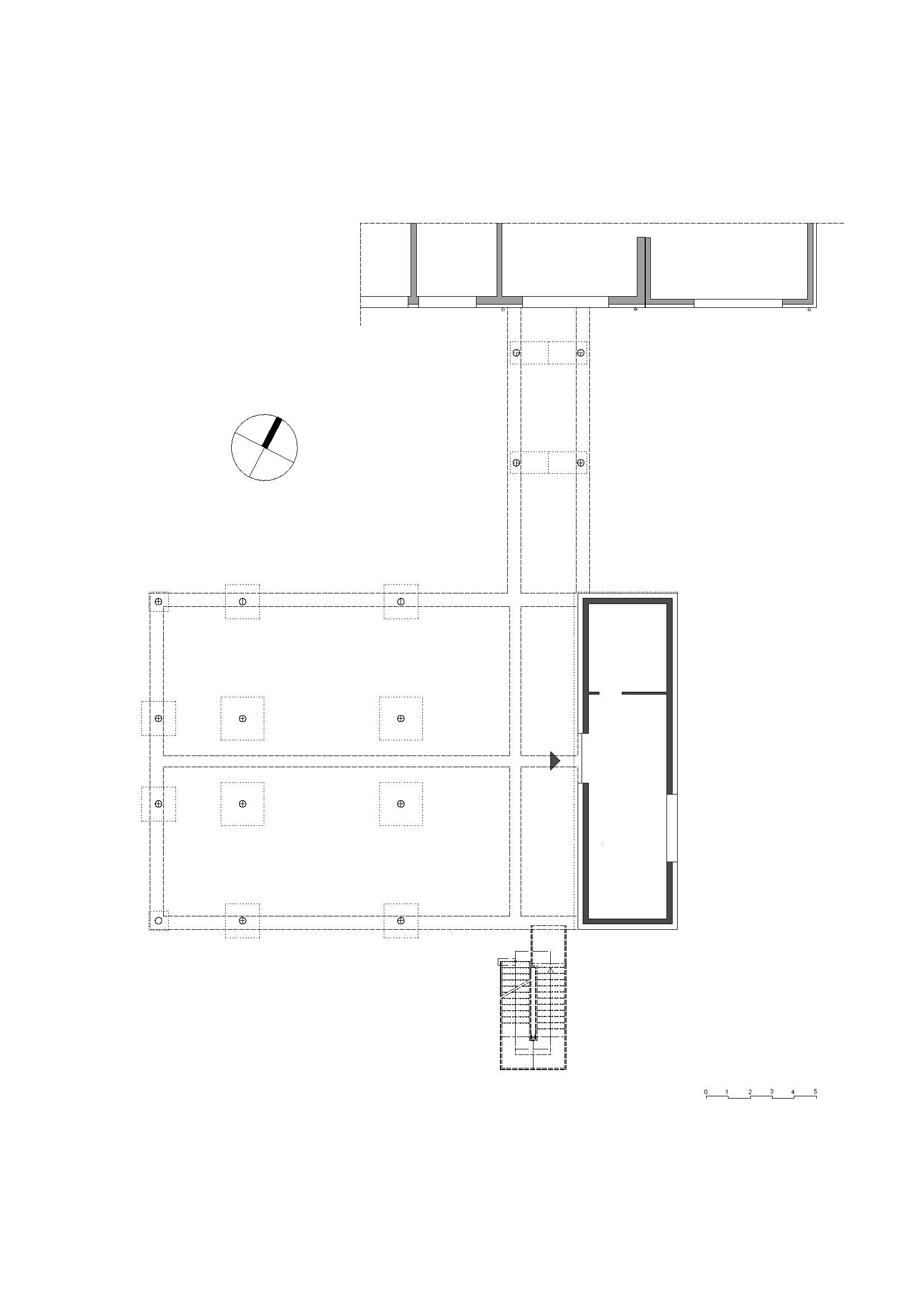
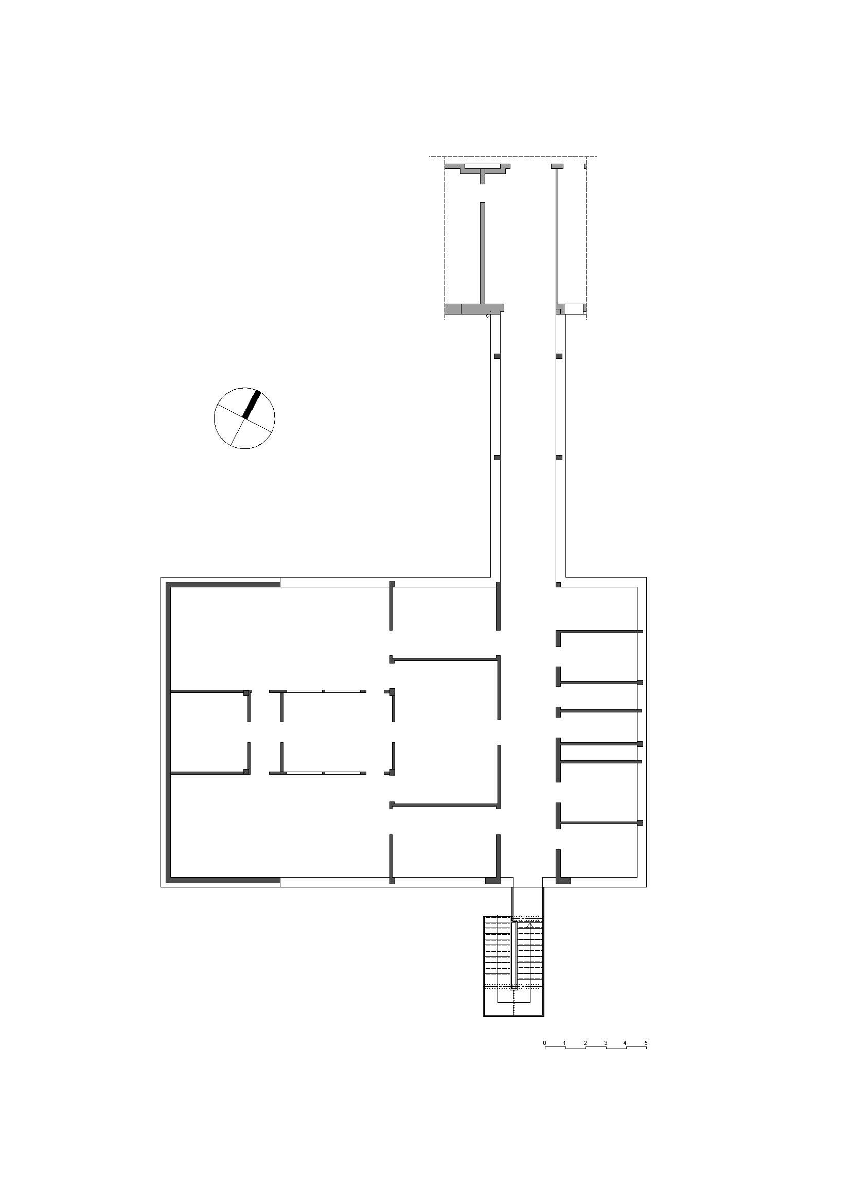
Das Heidekreis-Klinikum Soltau hat auf der Süd-Ost-Seite zwischen den Bauteilen A + C einen Erweiterungsbau erhalten, in dem die Kardiologie-Abteilung untergebracht wird. Die Anbindung erfolgt im OG durch einen Verbindungsgang an das bestehende BT A. Im OG befinden sich die Untersuchungs- und Nebenräume. Im EG sind die Technikräume für Elektro und Lüftung untergebracht.












