Spielmuseum Soltau
Umbau und Erweiterung Spielmuseum Soltau
Dieses Projekt wurde von der Architektenkammer Niedersachsen für den Tag der Architektur 2016 ausgezeichnet.
Dieses Projekt wurde 2016 mit dem Stadtbildpreis der Stadt Soltau ausgezeichnet.
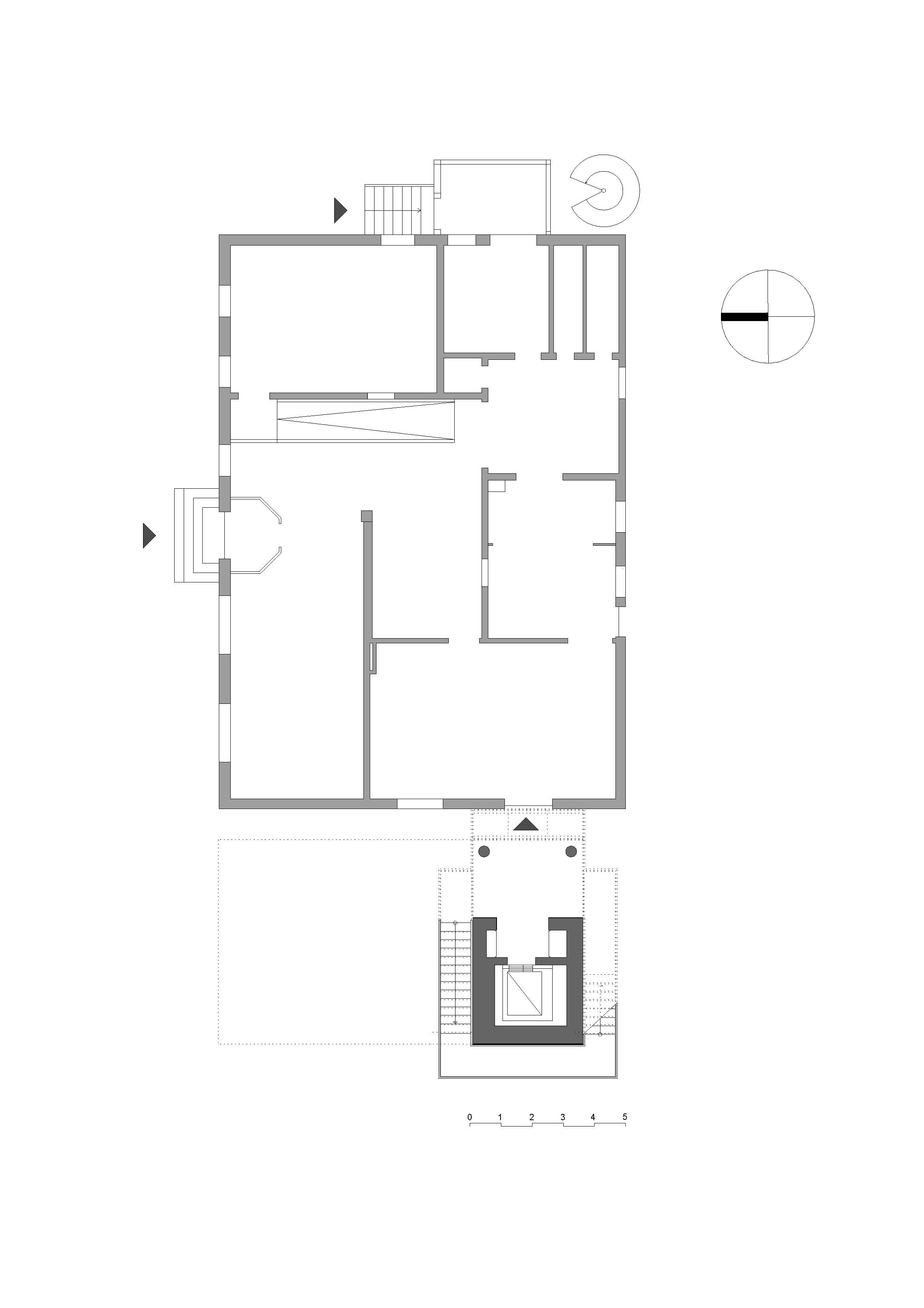
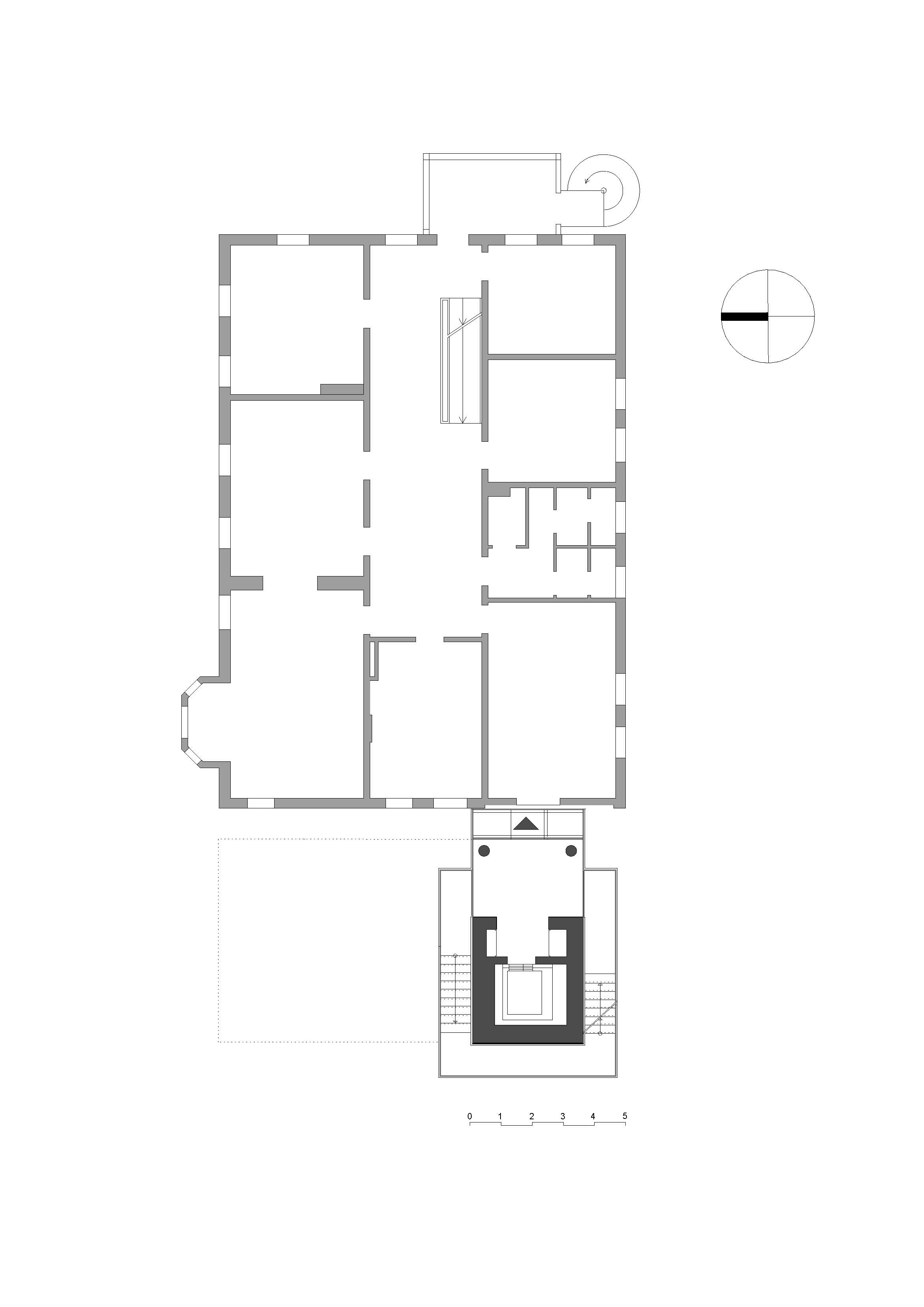
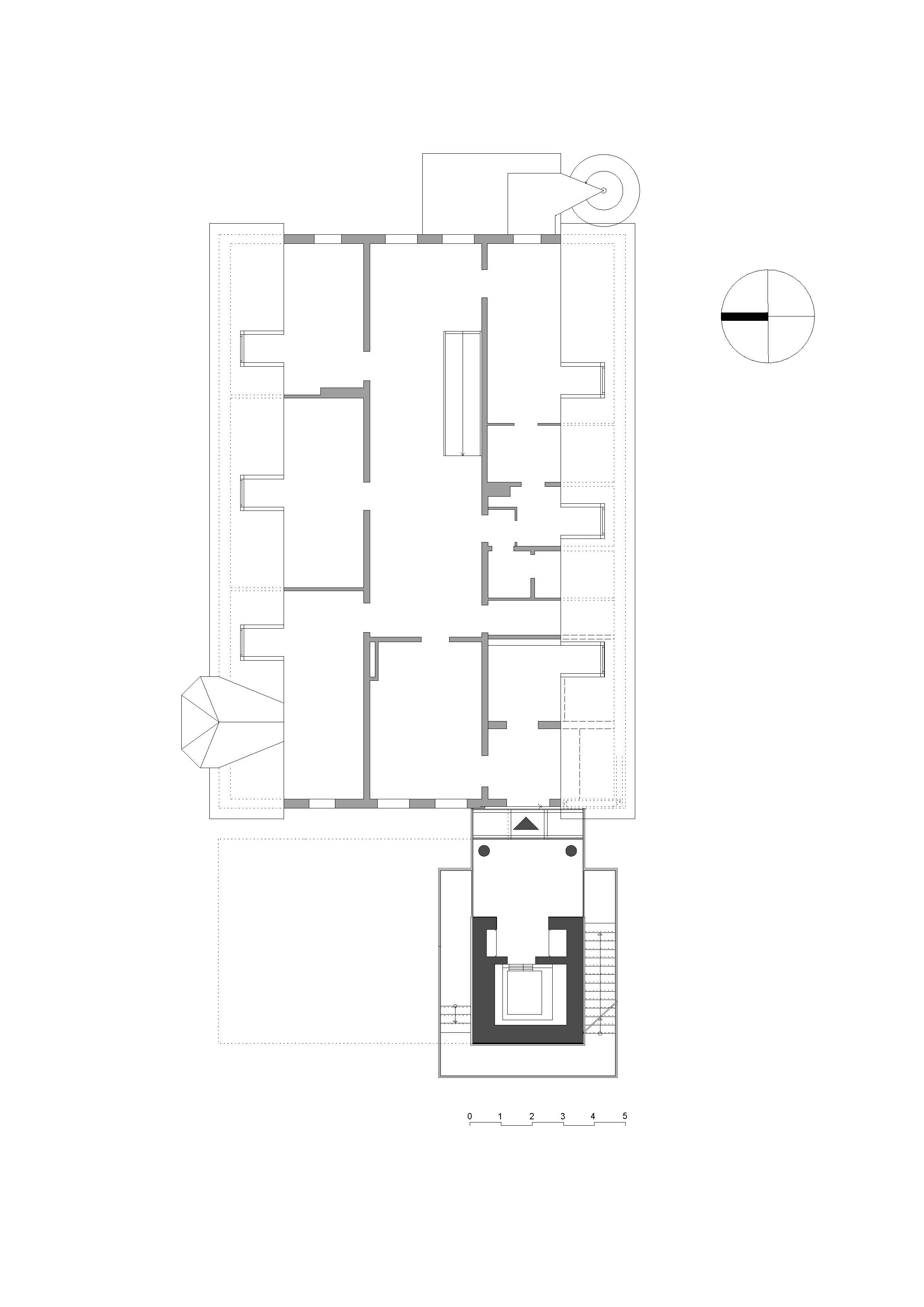
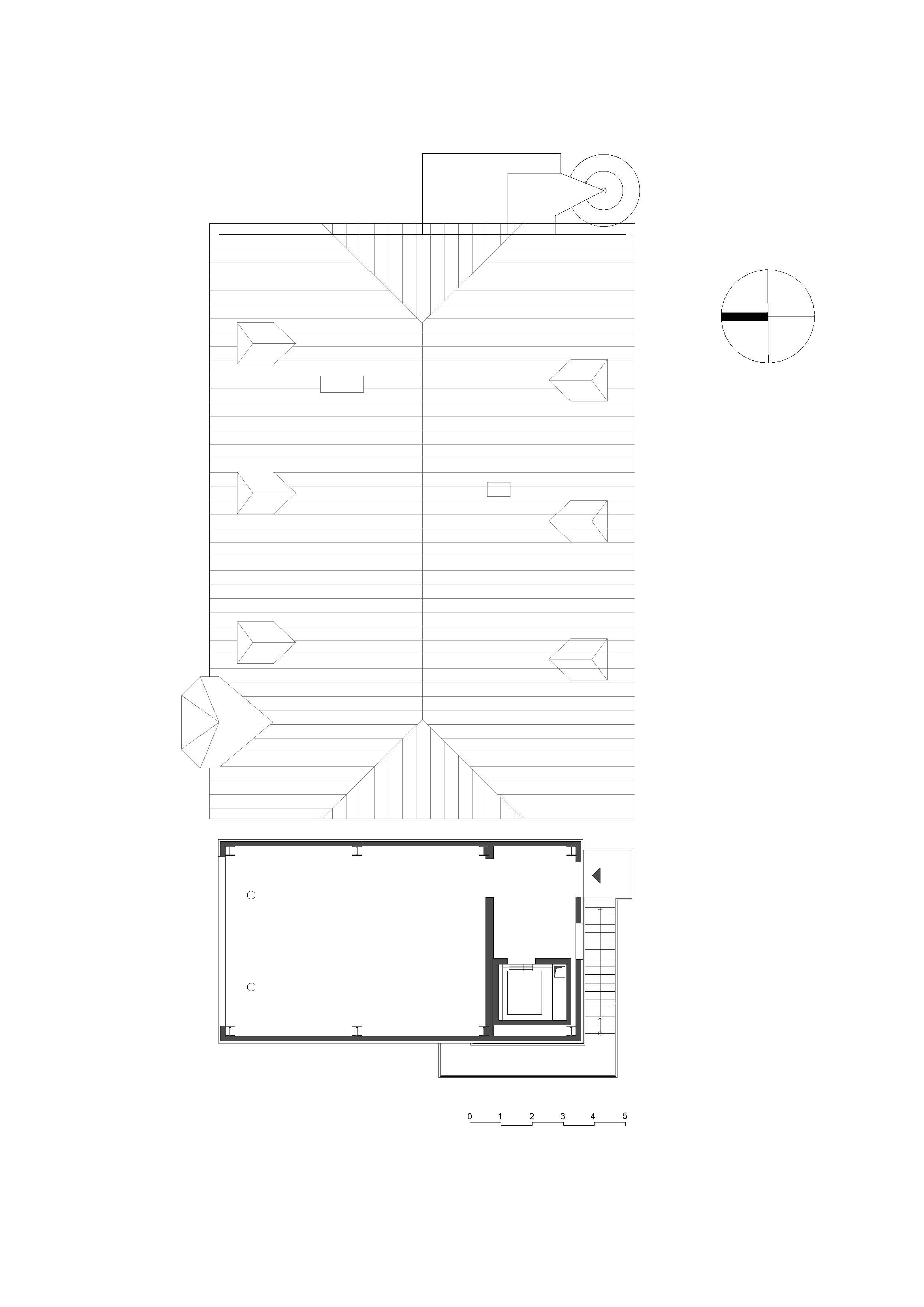
Neben der barrierefreien Erschließung der Geschosse, sollte das Spielmuseum um einen Multifunktionsraum für ca. 30 – 40 Personen erweitert werden. Aufgrund der extremen, beengten Grundstücksverhältnisse waren Erweiterungen in Richtung Nord, Süd und Ost nicht möglich. Es stand lediglich auf der Westseite ein Restgrundstück zur Verfügung, das allerdings auch eine ebenerdige Lösung nicht zuließ. Daraus entstand der Entwurfsgedanke, diesen Multifunktionsraum auf der Spitze des Aufzugsturmes zu plazieren. Hieraus entstand der Arbeitstitel „Fliegendes Klassenzimmer“. Dieses Projekt hat von Beginn an eine starke Befürwortung und eine starke Ablehnung erfahren. Die erforderliche Außentreppe ist für jedermann frei zugänglich und hat sich mittlerweile zu einem beliebten Aussichtspunkt entwickelt. Die verspiegelte Unterdecke ist für das Spielmuseum zu einer weiteren Attraktion geworden.















